Em muitas situações o construtor por, várias razões, decide projetar e/ou construir a própria churrasqueira/lareira, seja por entender que terá menor custo inicial, pressa, uso de mão de obra própria ou mesmo por necessitar de projetos especiais com equipamentos às vezes importados e tantos outros motivos.
Houve uma época que isso não trazia maiores problemas. As construções eram mais baixas, com poucas unidades, as tecnologias eram simples. E, se voltasse um pouco de fumaça, ficava na área externa (caso da churrasqueira). Quase ninguém reclamava se voltasse um pouco de fumaça, afinal isso era normal por assim dizer.
Trincas em torno de uma lareira ou churrasqueira eram aceitas. Os usuários não exigiam tanto. Se fosse necessário substituir uma chaminé por deterioração precoce, isso era aceito com relativa tranquilidade. Não era tão difícil. Tinha-se o entendimento de que os espaços não precisavam ser tão bem aproveitados, sobravam shafts espaçosos.
Havia também menor concorrência e, consequentemente, maior índice de lucratividade, portanto pós obra, era mais aceito que hoje. Também não era tão comum processos judiciais por patologias em obras como acontece em nossos dias.
Hoje, todo construtor experiente sabe a importância de um bom projeto e o quanto se pode economizar, evitar retrabalhos e desgastes com usuários além de posicionamento no mercado como marca de confiança diante dos consumidores.
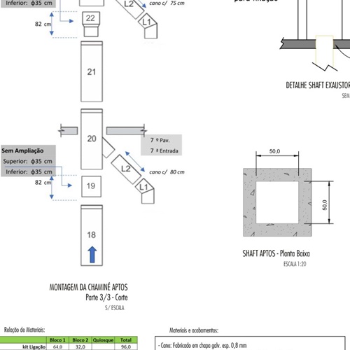
O projeto de chaminés
O projeto de churrasqueira e lareira as vezes é negligenciado por alguns construtores. Mas, quando ocorre problemas, os desgastes, ao precisar resolvê-los tendem a ser grandes. E os empreendedores são levados a repensar essa questão.
Diante dessas considerações, temos a satisfação de apresentar a comunidade de arquitetura, engenharia e empreendedores construtores mais este serviço. Pode ser contratado juntamente com fornecimento de nossos produtos ou mesmo em separado, neste caso sendo apenas o projeto executivo com desenvolvimento de documentos técnicos específicos e acompanhamento com estudos particulares de cada caso.
Você pode contar com nossa expertise de mais de 30 anos de mercado!

